Description

To let: FURNISHED family home ready for immediate occupation (temporary rental).
Rental period: From 1 March 2026 to 28 February 2027.

This modern, fully furnished family home is available to rent for a fixed period. It is located in the attractive, child-friendly Vestingstad neighbourhood, which is part of Schuytgraaf. The property is situated in a quiet street with various playgrounds and green spaces nearby.

Schuytgraaf is located a short distance from the vibrant city centre and offers excellent facilities, including several primary schools, an international school, sports facilities, restaurants, and a shopping centre. The nearby Arnhem South railway station and the A50 and A325 motorways provide excellent accessibility.

Layout:
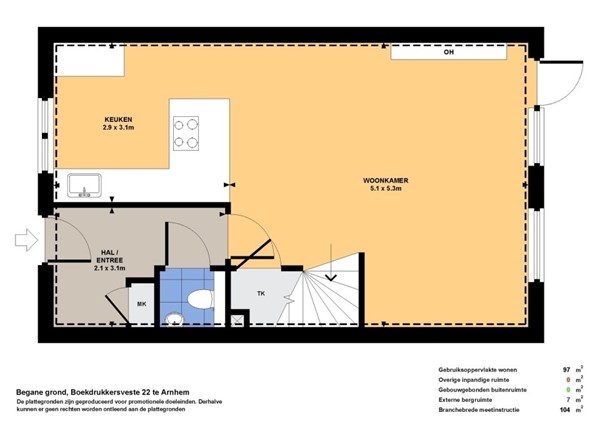
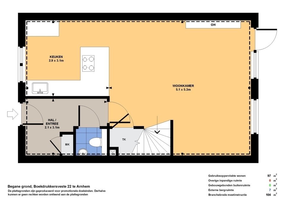
Ground floor: entrance hall with a modern toilet and a storage cupboard, and a staircase leading to the first floor. The spacious and bright living room overlooks the rear garden and features a gas fireplace. The modern open-plan kitchen is equipped with various built-in appliances, including an induction hob with an integrated extractor fan, a dishwasher, a fridge-freezer and a combi oven.

The beautifully landscaped rear garden includes a storage shed and a rear entrance with direct access to the parking courtyard, which offers ample parking space.

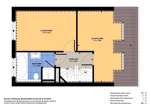
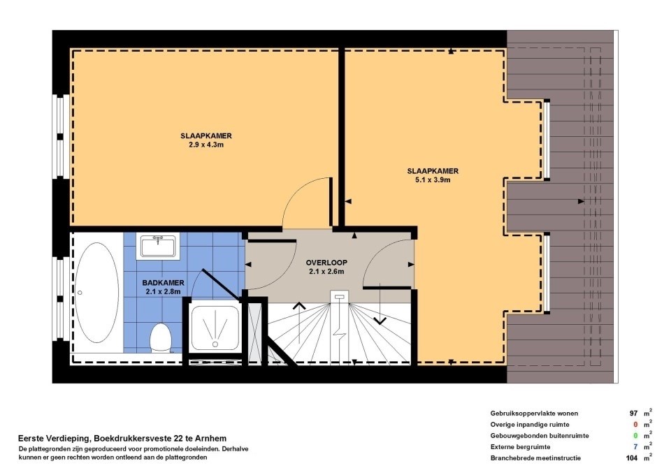
First floor: This floor comprises two spacious bedrooms with built-in wardrobes and a modern bathroom. The comfortable, well-finished bathroom features a bathtub, a second toilet, a large washbasin with a vanity unit, and a walk-in shower.

Second floor: The second floor is practically laid out with a generous landing, an additional bedroom and a separate laundry room. A loft, accessible via a loft ladder, provides additional storage space.

If you are interested, please carefully review the rental conditions. If you meet these requirements, we look forward to receiving your response.

Rental conditions:
* Let for a fixed period under a diplomatic clause.
* Subject to owner’s approval.
* The rent excludes gas, water, electricity, TV/internet and municipal taxes.
* Income requirement: a minimum gross monthly fixed income of €7,500 with a permanent employment contract.
* Self-employed applicants must provide annual financial statements for the past three years.
* Third-party guarantees or savings are not accepted as security deposits.
* Student loans (DUO) cannot be accepted as income.
* Smoking is not permitted.
* Pets are not allowed.
*Cosmetic changes to the property, such as painting, wallpapering, drilling or similar alterations, are not permitted.

Prospective tenant(s)' creditworthiness will be assessed through credit checks, including BKR, EDR, Focum and ID verification.

No rights can be derived from any inaccuracies in the above information, photographs and/or floor plans. All measurements are indicative, and published measurements are not NEN-certified.

Features