Description

OPEN HUIS:
* zaterdag 17 januari van 11:00 - 13:00 uur. 

U bent van harte welkom om de woning te bezichtigen op de bovengenoemde dag. U hoeft hiervoor geen afspraak te maken met ons kantoor.

Aan de Amsterdamseweg in Arnhem, op de rand van de geliefde Burgemeesterswijk, bevindt zich deze ruime en karakteristieke bovenwoning. De woning is momenteel verdeeld over twee appartementen, maar biedt uitstekende mogelijkheden om samen te voegen tot één woonhuis met een praktische en comfortabele indeling. 

De ligging is bijzonder aantrekkelijk: op korte afstand van Station Arnhem, het stadscentrum en het geliefde Park Sonsbeek en Zypendaal. Voor de dagelijkse boodschappen bevindt zich op steenworp afstand 2 supermarkten en een bakker. De combinatie van centrale bereikbaarheid en groen in de directe omgeving maakt deze locatie zeer gewild. 

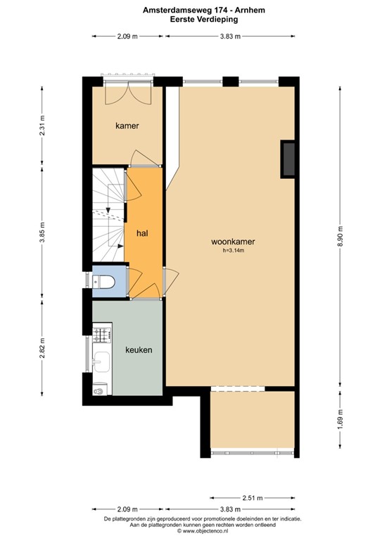
Bij samenvoeging kan op de eerste etage een royale woonverdieping worden gerealiseerd met een lichte woonkamer, gekenmerkt door sfeervolle glas-in-lood bovenramen, een ruime keuken en bijvoorbeeld een aparte studie- of werkkamer. De karakteristieke details in combinatie met de royale raampartijen zorgen voor een prettige lichtinval en een warme uitstraling. De tweede verdieping leent zich bij uitstek voor een volwaardige slaapverdieping met drie slaapkamers, een badkamer en toegang tot een balkon. Hiermee ontstaat een comfortabele woning die geschikt is voor diverse woonwensen.

De woning biedt een solide basis en volop mogelijkheden voor modernisering en herindeling naar eigen wens. Een interessant object voor kopers die ruimte, karakter en een centrale ligging weten te waarderen.

Bijzonderheden:
* bouwjaar ca. 1911;
* woonoppervlakte ca. 109 m2;
* parkeren gaat middels een vergunning of betaald parkeren;
* het platte hoofddak is in 2024 vervangen en geïsoleerd;
* de gehele woning is aan de buitenzijde in 2023 geschilderd; 
* aanvaarding in overleg, op korte termijn mogelijk.

Deze informatie is door ons met de nodige zorgvuldigheid samengesteld. Alle verstrekte informatie moet beschouwd worden als een uitnodiging tot het doen van een bod of om in onderhandeling te treden. Onzerzijds wordt echter geen enkele aansprakelijkheid aanvaard voor enige onvolledigheid, onjuistheid of anderszins, dan wel de gevolgen daarvan. Alle opgegeven maten en oppervlakten zijn indicatief.

Features