Beschrijving

Welkom bij deze charmante, gestoffeerde eengezinswoning met 3 slaapkamers aan de W.A. Scholtenlaan 39 in het mooie Doorwerth! 
Deze fijne gezinswoning is gelegen in een groene en bosrijke omgeving, perfect voor degene die op zoek zijn naar rust, ruimte en natuur. 
Het overdekte winkelcentrum, speciaalwinkels en gezondheidscentrum bevinden zich allemaal op loopafstand, waardoor het dagelijkse leven hier bijzonder gemakkelijk en comfortabel is.

Indeling
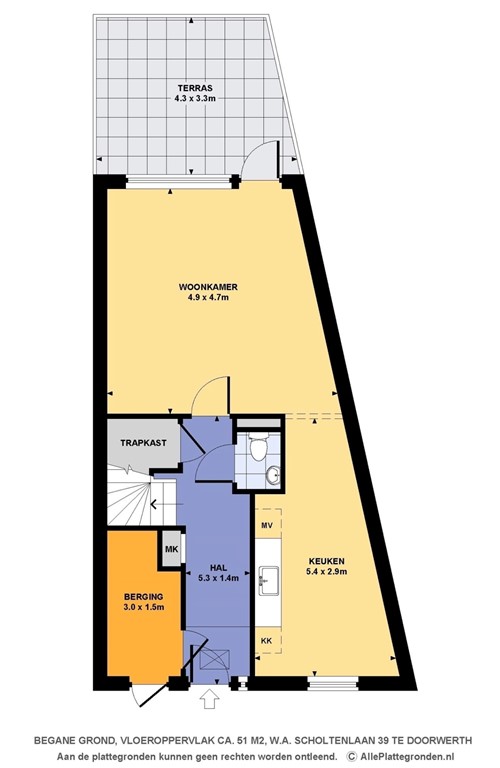
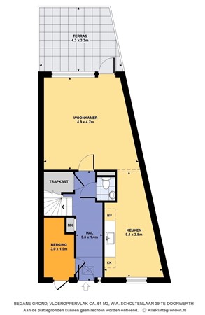
Bij binnenkomst komt u in de lichte woonkamer. De grote ramen zorgen voor prettig daglicht en geven zicht op de groene omgeving. 
Via de woonkamer bereikt u de achtertuin, een rustige plek met genoeg ruimte om buiten te zijn, te spelen of te ontspannen.

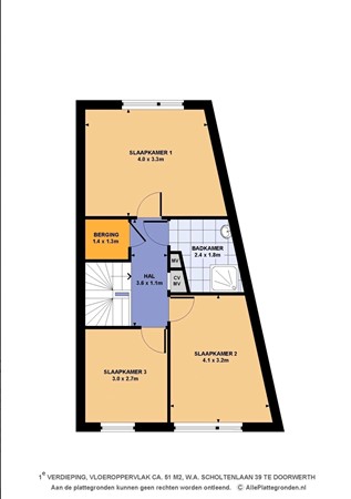
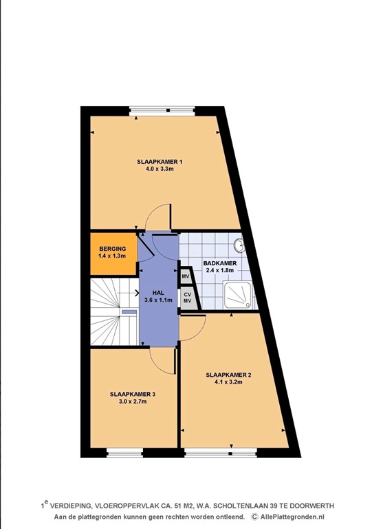
Op de eerste verdieping bevinden zich drie slaapkamers. De grootste kamer heeft een vaste kledingkast. De badkamer is ingericht met een douche, wastafelmeubel en een tweede toilet. Daarnaast is er een aparte ruimte voor de wasmachine en droger. 

De omgeving biedt diverse sportmogelijkheden, zoals een manege, tennisbanen en een sporthal. De bossen liggen op loopafstand en nodigen uit om te wandelen of te fietsen. Ook voorzieningen zoals kinderdagverblijven, basisscholen en het Dorenweerd College liggen in de directe omgeving. Arnhem en Wageningen zijn goed bereikbaar.

De woning heeft energielabel A, wat zorgt voor lagere energiekosten en een duurzame woonomgeving.

Kortom, W.A. Scholtenlaan 39 is een praktische en fijne eengezinswoning op een centrale locatie. Maak gerust een afspraak voor een bezichtiging.

Huurvoorwaarden:
- Verhuur onder voorbehoud gunning eigenaar;
- Energielabel A;
- Minimale huur periode 1 jaar daarna voor onbepaalde tijd;
- Huurprijs is excl. gas/water/elektra, tv/internet en gemeentelijke heffingen;
- Inkomenseis: minimaal €5512,- aan bruto vast inkomen, arbeidsovereenkomst voor onbepaalde tijd zonder proeftijd;
- Ondernemers moeten van de laatste 3 jaar de jaarcijfers kunnen overleggen;
- Borg-/garantstellingen of spaartegoeden worden niet geaccepteerd, niet geschikt voor studenten en/of woningdelers;
- Roken en huisdieren zijn niet toegestaan.

Toekomstige huurder(s) worden gescreend middels creditchecks van o.a. BKR, EDR, Focum en ID-check.

Aan onvolkomenheden in de hierboven vermelde gegevens, foto’s en/of plattegronden kunnen geen rechten of aanspraken worden ontleend.
Alle maten en afmetingen zijn indicatief, gepubliceerde metingen worden niet NEN gemeten.

Kenmerken