Beschrijving

Uniek wonen in het hart van Oosterbeek – Luxe loft met dakterras in een voormalig schoolgebouw.

Zaaijerplein 17 te Oosterbeek | 235 m² woonoppervlakte | 4 slaapkamers | Dakterras van 23 m² | Garage & parkeerplaats | Energielabel C

Op zoek naar een bijzonder, ruim en stijlvol thuis op een toplocatie? Deze unieke loft, gelegen in een karakteristiek schoolgebouw uit 1920, combineert historie met hedendaags wooncomfort. In 2006 is het gebouw volledig gerenoveerd met hoogwaardige materialen en behoud van authentieke details. Het resultaat: een sfeervol penthouse met royale ruimtes, veel lichtinval en een sublieme afwerking.

Toplocatie in Oosterbeek
Op loopafstand van het charmante dorpscentrum met boetieks, supermarkten, horeca en gezellige terrassen. Voor natuurliefhebbers en sporters liggen bossen, parken en sportverenigingen om de hoek. Kinderopvang en scholen zijn snel bereikbaar. Bovendien bent u via de A12, A50 en het openbaar vervoer uitstekend verbonden met de rest van Nederland.

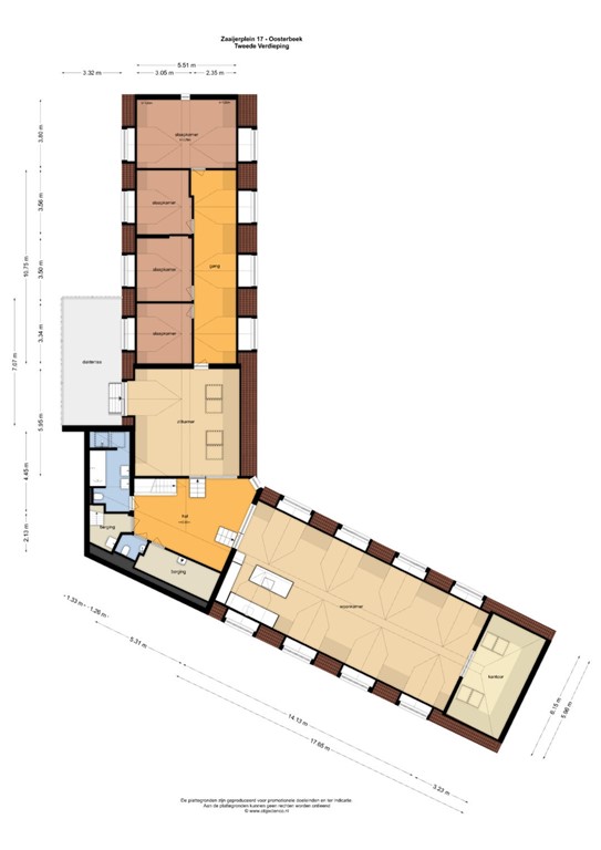
Indeling van de woning.

Entree & hal.
Via een eigen entree komt u binnen in de indrukwekkende centrale hal. Deze vormt het hart van de woning en verbindt de woon- en slaapvleugel. Hier vindt u o.a. een gastentoilet, wasruimte, technische ruimte en badkamer.

Woonvleugel.
Een paar treden leiden naar de stijlvolle, open keuken met granieten werkblad, luxe inbouwapparatuur (waaronder een koffiezetapparaat, vaatwasser en koelkast) en een riant kookeiland met bar. Aangrenzend bevindt zich de royale eetkamer en sfeervolle living met houten balken, acht dakkapellen, prachtig lichtinval en een robuuste houtkachel. De woonkamer is verbonden met een ruime studeerkamer via authentieke schuifdeuren en een karakteristieke muur.

Slaapvleugel.
Aan de andere zijde van de hal ligt een multifunctionele ruimte, ideaal als tv- of speelkamer. Vanuit hier openen dubbele deuren naar het zonnige dakterras op het oosten. De slaapvleugel beschikt over een royale master bedroom èn 3 slaapkamers, een van de slaapkamers is nu ingericht als walk-in closet. De luxe badkamer, gelegen tussen de slaap- en de woonvleugels, is voorzien van een ligbad, dubbele wastafels, ruime inloopdouche en tweede toilet.

Deze woning is ook te huur via de Leegstandwet, voor een minimale periode van 6 maanden.

Leegstandwet: 
De minimale huurperiode is 6 maanden, 
Huurder kan na 5 maanden met 1 kalendermaand de huur opzeggen. 
Verhuurder kan na 3 maanden met 3 kalendermaanden de huur opzeggen.


Buitenruimte & extra’s:
* Ruim dakterras van ca. 23 m²
* Privé parkeerplaatsen en een garage
* Eikenhouten vloeren door de hele woning
* Dakkapellen met houten shutters aan west- en zuidzijde

Bijzonderheden:
* Totale woonoppervlakte: 235 m²
* Bouwjaar: 1920, renovatie in 2006
* Energielabel: C
* Unieke combinatie van ruimte, sfeer en luxe op toplocatie
* Bijdragen VvE; € 105,83
* Aanvaarding in overleg, op korte termijn mogelijk.

Ziet u zichzelf al wonen in deze karaktervolle loft in Oosterbeek? Neem dan contact met ons op voor een bezichtiging. Dit is exclusief wonen op zijn best.

Bovenstaande informatie is met zorg samengesteld. Toch aanvaarden wij geen aansprakelijkheid voor onjuistheden of onvolledigheden. Alle maten en oppervlakten zijn indicatief en de informatie is bedoeld als uitnodiging tot het doen van een bod of het aangaan van onderhandeling.

Kenmerken