Description
This semi-detached family home comes with a garage and a sunny garden, and is within walking distance of Wageningen city centre.
This characterful semi-detached home is located in the sought-after, child-friendly Bovenbuurt neighbourhood, just a few minutes from the charming city centre of Wageningen. It features authentic details, an attached brick garage, private parking and a lovely west-facing garden.
Location
You will live in a quiet residential area with a supermarket practically around the corner. The vibrant city centre of Wageningen, with its charming shopping streets, cosy terraces, restaurants, theatre and cinema, is within walking distance. Schools, sports facilities and public transport are also easily accessible. Nature lovers can enjoy the nearby forests and the Wageningen Eng, which are perfect for walking and cycling trips. Major roads, such as the A12, can be reached quickly.
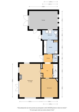
Ground Floor
Through the entrance is the hallway, which has a toilet and access to various rooms. The bright living room features a storage cupboard, a fireplace and French doors that lead out to the terrace. A separate study provides a comfortable space for working from home. The kitchen has a classic terrazzo floor and a straight layout with views of the garden. The utility room houses the central heating system and connections for laundry appliances.
The first floor comprises three bedrooms, one of which has access to the balcony. The bathroom is equipped with a shower cubicle, toilet and washbasin.
Attic: Via a loft ladder, you can access the practical storage attic.
Outside, the lovely, sunny, green garden is located on the west side. The attached brick garage provides space for one car and is ideal for storing bicycles or garden equipment.
Particulars:
* Semi-detached home with characterful, authentic details.
* Attached brick garage and private parking
* Sunny, west-facing garden
* Study on the ground floor
* Within walking distance of the city centre and close to nature reserves
* Transfer in consultation; possible in the short term.
The information has been compiled with care. All information provided should be considered an invitation to make an offer or enter into negotiations. However, we accept no liability for any incompleteness, inaccuracies or other issues, nor for any consequences thereof. All stated measurements and areas are approximate.